


















Vila tip duplex, cu o structură deosebită, amplasată într-o zonă liniștită, oferă un spațiu generos și confortabil. Construită în 1940 din cărămidă dublă și planșeu de beton, cu o structură deosebită, imobilul se remarcă prin finisaje de calitate superioară și un design atent gândit fiind complet renovată în 2018, imobilul beneficiază de toate conforturile moderne, păstrând în același timp un design clasic și o atmosferă caldă și primitoare.
Detalii tehnice:
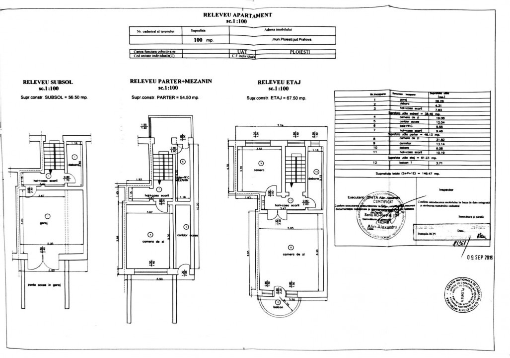
Anul construcției: 1940
Suprafață utilă: 145,76 mp
Suprafață utilă totală: 149,47 mp
Suprafață construită: 178,5 mp
Teren: 100 mp
Izolație exterior: Vată bazaltică de 10 cm, grosimea pereților fiind de 1 m
Acoperiș: Tabla tip Lindab
Încălzire: Centrală termică cu încălzire în pardoseală la demisol
Scară interioară: Beton îmbrăcat în lemn
Uși interior: Lemn masiv
Pardoseala este din marmură, gresie și lemn
Compartimentare:
Demisol (Suprafata utila= 38,40 mp, Suprafata construită=56,60 mp):
Bucătărie cu living open space acesta avand încălzire în pardoseală
Grup sanitar
Hol
Casa scării
Parter (Suprafata utila=46,13 mp, Suprafata construită=54,50 mp):
Hol
Dressing
Baie
Living
Coridor de acces
Casa scării
Etaj (Suprafata utila=61,23 mp, plus balcon de 3,71 mp, Suprafata utilă totală=64,94 mp, Suprafata construită=67,50 mp):
Hol
2 Dormitoare (unul cu balcon)
Baie
Casa scării
Vila beneficiază de finisaje de calitate, iar compartimentarea eficientă face ca fiecare spațiu să fie utilizat la maximum. Este ideală pentru o familie care apreciază confortul, dar și un design clasic cu accente moderne. Aceasta se vinde parțial mobilată și utilată în funcție de cerințele cumpărătorului.
Pentru mai multe informații sau programarea unei vizionări, nu ezitați să ne contactați!